产品中心

PRODUCT

产品中心

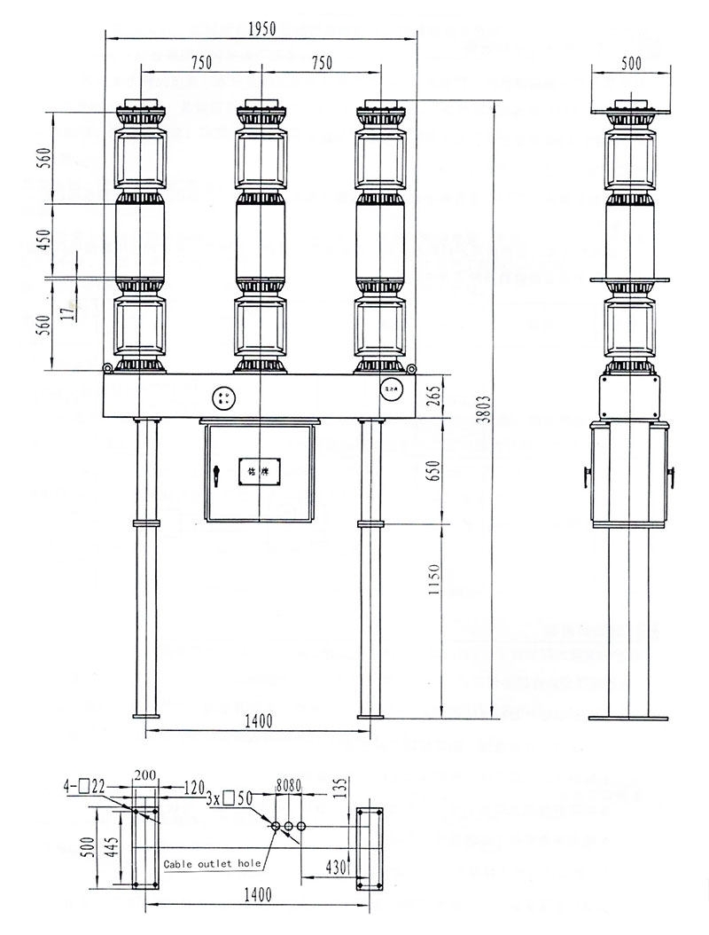
LW16A-40.5 户外高压六氟化硫断路器

LW16A-40.5/1600-31.5户外高压六氟化硫断路器适用于三相交流50Hz 35kV输配电系统,起控制和保护作用,也可用于联络断路器及开合电容器组的场合;并可外置电流互感器供测量与保护用。适用于海拔不超过3000m,环境温度-25℃~+40℃, 风速不超过34m/s,污秽等级不超过IV级,地震烈度不超过9度的户外环境。
如果您有任何问题可以联系我们!
联系我们

电话:0792-7669793   13479228866

扫一扫,加我为朋友
  • 详细信息
详细信息

一.LW16A-40.5 户外高压六氟化硫断路器概述:

适用于三相交流50Hz 35kV输配电系统,起控制和保护作用,也可用于联络断路器及开合电容器组的场合;并可外置电流互感器供测量与保护用。适用于海拔不超过3000m,环境温度-25℃~+40℃, 风速不超过34m/s,污秽等级不超过IV级,地震烈度不超过9度的户外环境。

二.LW16A-40.5 户外高压六氟化硫断路器产品特点:

(1)开断性能优良,采用压气式灭弧室,燃弧时间短,电寿命长;

(2)机械可靠性高,合闸能力强,能频繁操作;

(3)密封性能可靠,SF6年漏气率远小于0.5%;

(4)结构简单、体积小,操作安全、维护方便,检修周期短。

三.LW16A-40.5 户外高压六氟化硫断路器主要技术参数:

序号

项目

单位

技术参数

1

额定电压

kV

40.5

2

额定频率

Hz

50

3

额定电流

A

1600 2000 2500 3150 4000

4

额定短时耐受电流

kA

31.5

5

额定短路关合电流

kA

80

6

额定峰值耐受电流

kA

80

7

额定短时耐受电流持续时间

s

4

8

额定短时工频耐受电压(1min)

kA

kA

9

额定雷电冲击耐受电压

kV

kV

10

辅助回路1min工频耐受电压

kV

kV

11

额定SF6气体压力(20℃表压)

Mpa

0.5

相关产品
联系我们
扫一扫,加我为朋友

在线
QQ

点击这里给我发消息 841496627
在线QQ

微信
咨询

扫一扫,加我为朋友
扫一扫,加我为朋友

服务
热线

0792-7669793

13479228866
服务热线

客服
邮箱

jxzhdl@126.com
客服邮箱